Dịch vụ tạo bản vẽ lắp, bản vẽ chi tiết, danh sách các chi tiết từ bản vẽ cơ cấu
Quý khách hãy lên ý tưởng và thiết kế cơ cấu, còn phần việc cơ báp như bóc tách bản vẽ, tạo bản vẽ chi tiết thì hãy giao cho chúng tôi
Hãy liên hệ với chúng tôi
Chúng tôi sẳn sàng lắng nghe những vấn đề của Quý khách và đưa ra những phương án phù hợp nhất.
Hãy trải nghiệm dịch vụ chất lượng Nhật Bản giá thành Việt Nam
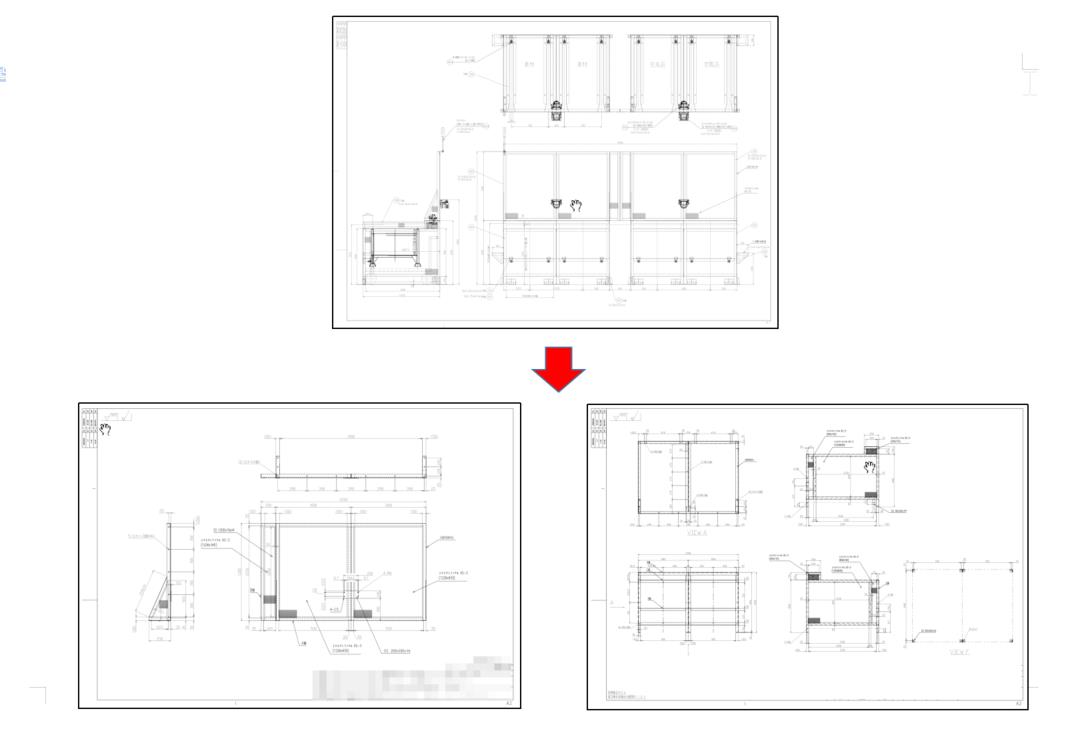
Hình ảnh minh hoạ : Bóc tách bản vẽ

Hình ảnh minh hoạ : Tạo bản vẽ 2D từ mô hình 3D
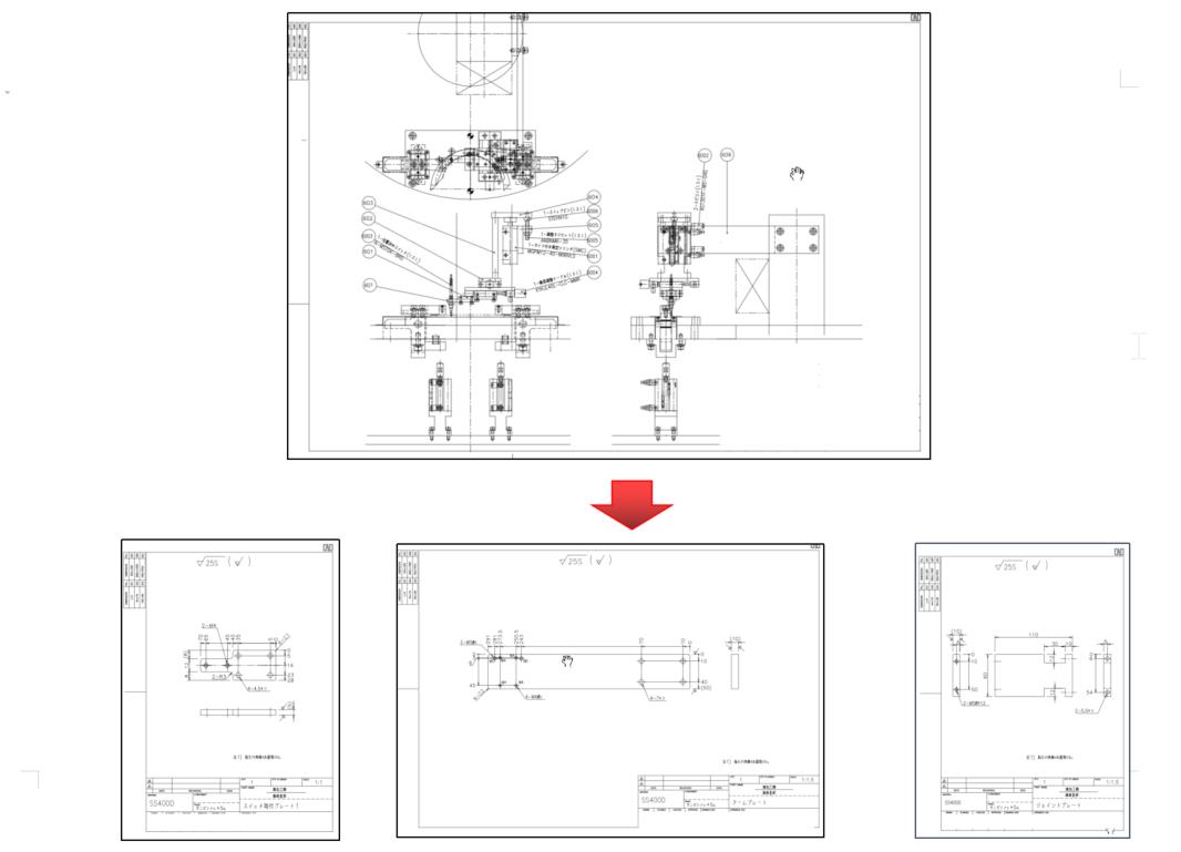
Hình ảnh minh hoạ : Tạo bản vẽ chi tiết từ bản vẽ lắp
Hình ảnh minh hoạ : Dựng mô hình 3D từ bản vẽ 2D












